
礦用脫水篩產品介紹:
礦用脫水篩一種應用于煤炭行業選煤廠的高效細粒煤脫水的煤泥離析脫水篩,用于選煤、選礦、等部門中、細粒度干式、濕式篩分、脫水、脫介、脫泥等,脫水振動篩運動軌跡為直線,是根據JB2444-86《ZSM型煤用座式雙軸振動篩》標準生產的,全系列共有十六種規格,可供選煤、選礦、發電、制糖、制鹽等工業部門,對中細粒度物料進行干濕式篩分、脫水、脫介、脫泥。

礦用脫水篩工作原理:
礦用脫水篩采用座式激振器或法蘭式激振器,由兩臺電機外拖動作反方向同自同步旋轉,采用雙電機驅動自同步技術,激振器通過繞性聯軸器拖動,兩組激振器作同步反向旋轉時,其偏心塊所產生的激振力在平行于電機軸線的方向相互抵消,在垂直于電機軸的方向疊為一合力,從而形成單一的沿振動方向的激振力,其兩軸相對于篩面有一傾角,在激振力作用下使篩箱做往復直線運動,物料在篩面上被拋起跳躍向前作直線運動,同時V型設計的篩面結構更佳的實現脫水效果。
礦用脫水篩特點:
礦用脫水篩通過激振力改變了礦漿表面的水張力,漿水透過篩網成為篩下物,而微細物料被篩網阻隔形成濾層受振動力影響向前運動排出。
1.物料適應性廣:回轉篩廣泛應用于各類物料篩分,無論是劣質煤、煤泥,還是煤煙以及其它類物料,都能夠順利進行篩分;
2.進料方式簡單多樣:回轉篩進料口可根據現場實際設計,無論是皮帶、漏斗或其它進料方式,不用采取特殊措施,都可以順暢進料;3.篩分效率高:設備可設有梳型清篩機構,在篩分過程中,不管進入篩分筒的物料多臟、多雜都可以篩分,從而提高了設備的篩分效率;
4.篩分量大、易于大型化:在相同尺寸下,圓面積比其它型狀的面積都大,因此其篩分有效面積就大,使物料能充分接觸篩網,因而單位時間內篩分量就大。又因其結構簡單,布置方便,技術新穎而成熟等特點,極易大型化;5.自身能耗小: 回轉篩電機功率小,是其它篩型的二分之一到三分之一,處理相同量物料而運行時間僅為其它篩型的二分之一,因此能耗低;
6.工作環境好:整個篩分筒可以用密封隔離罩所密封,徹底清除了篩分循環過程中的粉塵飛揚,塊狀分濺等現象,避免了對工作環境的污染;
7.設備噪音低:回轉篩在運行中,由于回轉速度小,并且有密封隔離罩與外界隔離,使噪聲無法傳遞到外部,從而降低了設備噪音;

礦用脫水篩結構:
礦用脫水篩主要由:支撐裝置(底座和減振裝置)、篩箱、振動電機組成。
1、支撐裝置:篩體由四個支承裝置支撐,每個支撐裝置由橡膠彈簧、固定篩體卡、彈簧導向座、彈簧支座等組成。橡膠彈簧是減振裝置中不可缺少的元件,減少篩體對地基的動負荷。
2、篩箱:篩箱由篩框、篩板及壓緊裝置組成。
3、篩框:由高強度鋼板與加強角鋼組成的側板、鋼管、角鋼、槽鋼等焊接而成,內側焊有支撐篩板的托架。
4、篩板:單層篩的篩板使用不銹鋼條縫焊接網篩板,條縫寬度為0.3mm、0.5mm、0.6mm不等,可按客戶脫水要求選擇;雙層篩的下層篩板與單層篩相同,上層篩板一般采用不銹鋼編織網,也可采用不銹鋼條縫焊接網。
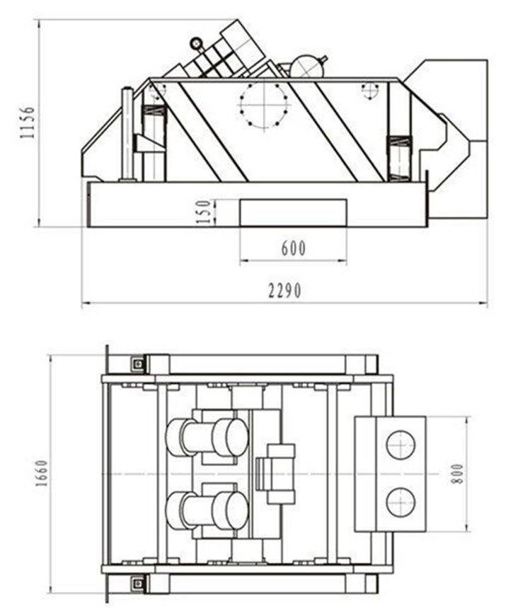
礦用脫水篩外形結構圖:


礦用脫水篩試運行:
在運轉前應做一些必要的檢查,保證振動電機轉動靈活。振動電機與控制箱的接線要正確,即兩臺(相同功率、轉速)振動電機必須相反方向轉動(且同步相對旋轉),而不能相同方向轉動。
(1)、試運轉時,消除篩箱與溜槽和排料口的碰撞現象。
(2)、試運轉不少于2小時在此時間內,應細致觀察和檢查,篩機啟動后應工作平穩,振幅穩定。
(3)、篩機運轉時,篩箱不得產生橫向擺動。若產生此現象,其原因是四個支撐座的高差不一致或篩機制造過程中支撐部分焊接不標準造成。
(4)、試機2小時內,振動電機溫度逐漸升高,然后保持穩定,最高溫度不高于75℃。
(5)、如試機后,在短時間內,振動電機發出不正常噪音及溫度急劇上升或冒煙應立即停機,檢查電機、軸承、偏心塊等零件情況并處理。如篩板發出噪音,應檢查篩板壓緊裝置情況并壓緊,排出故障后重新啟動篩機。
(6)、檢查電器控制設備情況,確保控制設備運行正常。
(7)、經歷四小時的空機試運轉之后,應對篩機安裝工作進行驗收,發現問題及時處理。
脫水振動篩使用維修:
1、操作人員應熟悉篩機性能,在開始工作之前應詳細閱讀篩機說明書及值班記錄,并進行設備的總檢查,如振動電機的鏈接螺旋松緊,篩板的壓緊情況等。
2、啟動:篩機的啟動應遵循工藝系統順序,盡可能確保空負荷啟動。為確保兩臺振動電機同步相對旋轉,啟動時應先點動后再正常啟動。
3、每班中間和終了時應檢查振動電機負荷和篩機的工作情況。
4、停機:篩機停機應符合工藝系統順序。出特殊事故外,禁止帶料停機和停機后繼續向篩機給料。
5、激振力大小不符合要求時,只需調節振動電機偏心塊夾角(為方便調節『師大振動』每臺振動電機偏心塊上均做有調節標識),振動電機激振力可無級調整。夾角越大,激振力越小;反之則越大。夾角為零時激振力最大,180o時激振力為零。
6、篩機的維修:篩機的檢修應定期由專職人員進行。
7、橡膠彈簧溫度不得超過70℃。
8、振動電機的維修和調整:按YZDP系列或YZU/JZO系列三相異步振動電機使用說明書要求進行。
振動篩廠家家友情提示:請通過正規渠道購買振動篩配件,以保障您的合法權益!振動篩廠家請選河南奧創機械:www.fssmrb.com/zxky/ 24小時服務熱線:18937310551
物料直線運行方形篩專家-奧創機械 網站備案:豫ICP備16037295號-13